WORK
SERVICES
INTERIOR DESIGN
PORTFOLIO
HI-EDUCATION
OCC
UCI
USC
DEN
THH
HOSPITALITY
AVON
HEALTHY BISTRO
HYATT
LISA BON APETITE
RADISON
STARBUCKS
LAB, OFFICE + RETAIL
L3T
TAC
CITY
OCTA
ADA ASSESMENTS
MEP UPGRADE
MECH - THH
RTO - L3T
SEISMIC UPGRADE
RESIDENTIAL
GENDRON
SAYWITZ
TURNER
TUSTIN
OUR STORY
PRINCIPAL
FOUNDER
PRESIDENT
SR PROJECT MANAGER
PROJECT DESIGNER
OUR CLIENTS
CONTACT
Concept Design
Concept Design2
Concept Design3
Concept Design4
<
4 - 4
>
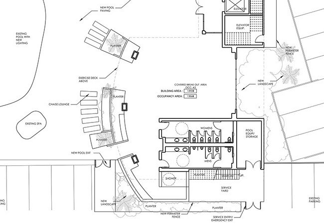
RADISON HOTEL,
NEWPORT BEACH, CA
Provided Schematic design for future Fitness Center by the pool area
Connect with us.
2961 W MacArthur Blvd
Suite 120
Santa Ana CA 92704
t. 714.556.2656
info@sternarchitects.com